- Location: Bucharest
- Team: Interior Arch. Adrian Ioan Ciorgovean
- Year: 2022
2022 Bucharest Architecture Annual Awards – Prize of the “Interior Space Architecture / HoReCa Design” section
Interior Design
2022 Bucharest Architecture Annual Awards – Prize of the “Interior Space Architecture / HoReCa Design” section
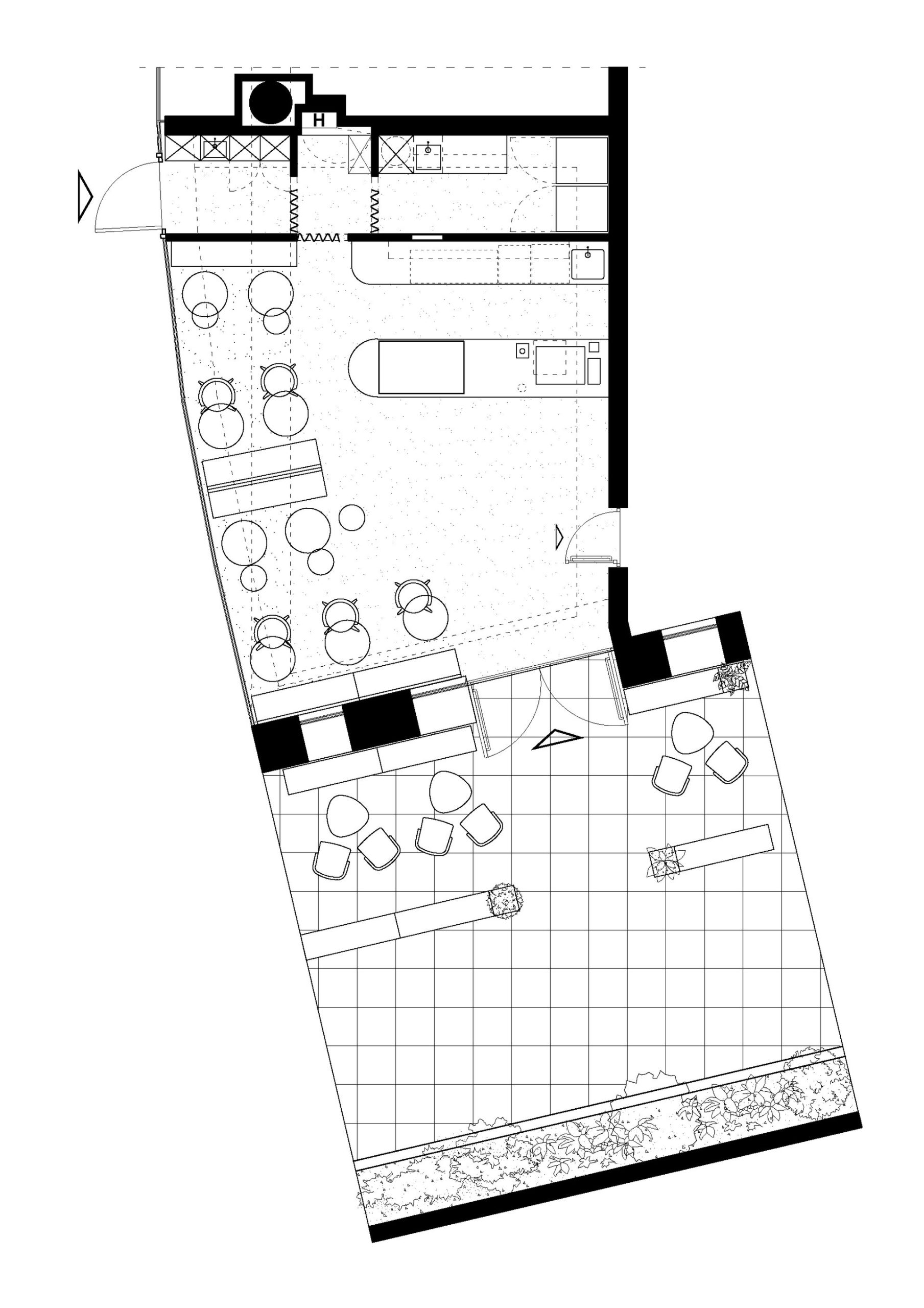
Starting from the logo, color palette, furniture, and materiality, the project reflects the brand’s attitude and promise, shaping a memorable spatial experience defined by the concept “stripped of artificials.” The interior is deliberately eliminates superfluous decorative elements, preserving a monochrome envelope articulated through greige, earthy tones. These are expressed by the raw texture of decorative cement that wraps the walls and the service area (bar and back bar), alongside a porcelain ceramic floor with dark grey, oxidized steel undertones.
The atmosphere is softened by custom-made ash wood furniture, solid wood chairs and stools, and dimmable lighting system that allows multiple scenographic settings throughout the day.
The minimalist language is subtly counterbalanced by an exposed industrial ceiling, with visible installations painted entirely in cement grey to unify the complexity of the overhead plane. The Roman arch emerges as a recurring motif throughout the space, informing the rounded geometry of the bar and back bar, the logo lettering applied to the bar front, the transitional opening between the public area and the staff zone, as well as the curved backs of the oak chairs and the centipede-like legs of the oiled ash benches.






I am text block. Click edit button to change this text. Lorem ipsum dolor sit amet, consectetur adipiscing elit. Ut elit tellus, luctus nec ullamcorper mattis, pulvinar dapibus leo.




I am text block. Click edit button to change this text. Lorem ipsum dolor sit amet, consectetur adipiscing elit. Ut elit tellus, luctus nec ullamcorper mattis, pulvinar dapibus leo.




I am text block. Click edit button to change this text. Lorem ipsum dolor sit amet, consectetur adipiscing elit. Ut elit tellus, luctus nec ullamcorper mattis, pulvinar dapibus leo.

Copyright © 2026
oandreeacucu@gmail.com | +40723924984 | Hamburg